高梁市空き家情報バンク

top<空き家情報バンク

空き家情報バンク

akiya
information bank

便利な立地の農地付き物件

物件管理番号
719
交渉状況
受付中
所在地
高梁市成羽町下原
賃貸
-
売買
150万円
上水道完備 下水道完備 浄化槽 汲取り 都市計画区域 農地付き

物件概要

種類 住宅
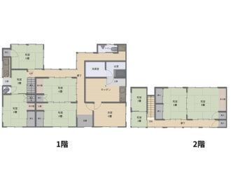
構造 木造2階建
間取り 1階:和室5部屋(6畳×4、3畳)、洋室、台所、風呂、トイレ
2階:和室4部屋(8畳、6畳、3畳、2畳)
敷地面積 約388㎡(117坪)
建築面積 -
延床面積 約184㎡
築年数 昭和44年
空き家年数 令和2年頃(以降管理なし)
修繕の要否 補修必要(給湯器等)
修繕の負担 利用者

設備等

電気 引込有 風呂 電気
ガス プロパン トイレ 洋式  浄化槽  水洗
水道 公営上水道 キッチン 電気調理器
駐車場 有1台 ペット -
付帯物件 倉庫兼ガレージ、納屋 空き地等 畑(隣接)261㎡、原野445㎡、山林120㎡

周辺環境

交通 JR伯備線・備中高梁駅 車で約15分(8,700m)
周辺施設 こども園 徒歩で約12分(900m)
小学校 徒歩で約1分(33m)
中学校 徒歩で約10分(700m)
スーパー 徒歩で約13分(950m)
病院 徒歩で約13分(950m)
コンビニ 徒歩で約4分(290m)
特記事項 ※現状引き渡し(残置物多・処分は買主負担)
※不動産業者仲介物件(別途、仲介手数料必要)
※家屋周辺の清掃及び町内活動のできる方
マップ

※HP上では物件所在地をピンポイントでご案内しておりません
※ルート検索では、エリア(物件所在地域)への案内となり、
 大体の所要時間がわかります