空き家情報バンク
akiya
information bank
付帯施設ががたくさん!駐車場も広い古民家物件
※下のサムネイル画像をクリックすると大きく表示されます
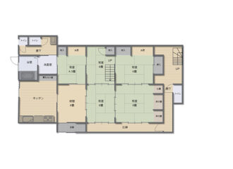
物件概要
| 種類 | 住宅 |
|---|---|
| 構造 | 木造2階建 |
| 間取り | 7DK |
| 敷地面積 | 宅地:約1,500㎡(約458坪) |
| 建築面積 | - |
| 延床面積 | 約170㎡ |
| 築年数 | 不詳 |
| 空き家年数 | 令和7年9月 |
| 修繕の要否 | - |
| 修繕の負担 | - |
設備等
| 電気 | 引き込みあり | 風呂 | 灯油給湯器 |
|---|---|---|---|
| ガス | - | トイレ | 簡易水洗(汲み取り) |
| 水道 | 市水道 | キッチン | 電気調理器 |
| 駐車場 | 10台以上 | ペット | - |
| 付帯物件 | 倉庫兼離れ(2階建)、牛舎、倉庫 | 空き地等 | 田:約4,100㎡、畑:約5,900㎡、山林:約91,800㎡、原野等:約8,600㎡ |
周辺環境
| 交通 |
JR備中高梁駅から車で約35分 岡山自動車道・有漢ICから車で約8分 |
|---|---|
| 周辺施設 | - |
| 特記事項 |
※現状引き渡し ※家屋周辺の清掃管理及び町内活動のできる方 ※売買価格(応相談) ※不動産業者仲介物件(別途、仲介手数料必要) |
| マップ |
※HP上では物件所在地をピンポイントでご案内しておりません |







