空き家情報バンク
akiya
information bank
今すぐ住める!ガレージ付きの広い物件
※下のサムネイル画像をクリックすると大きく表示されます
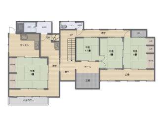
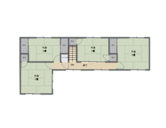
物件概要
| 種類 | 住宅 |
|---|---|
| 構造 | 木造2階建(一部鉄骨・地下あり) |
| 間取り | 8DK |
| 敷地面積 | 宅地:約260㎡(約78坪) |
| 建築面積 | - |
| 延床面積 | 約121㎡ |
| 築年数 | 昭和63年頃 |
| 空き家年数 | 令和2年頃 |
| 修繕の要否 | - |
| 修繕の負担 | - |
設備等
| 電気 | 引き込みあり | 風呂 | ガス給湯器 |
|---|---|---|---|
| ガス | プロパン | トイレ | 水洗(合併浄化槽) |
| 水道 | 市水道 | キッチン | ガス調理器 |
| 駐車場 | 数台(ガレージ1台分) | ペット | - |
| 付帯物件 | - | 空き地等 | - |
周辺環境
| 交通 | JR備中高梁駅から車で約25分 |
|---|---|
| 周辺施設 | - |
| 特記事項 |
※現状引き渡し(家財処分は家主で実施) ※家屋周辺の清掃管理及び町内活動のできる方 ※不動産業者仲介物件(別途、仲介手数料必要) |
| マップ |
※HP上では物件所在地をピンポイントでご案内しておりません |







