空き家情報バンク
akiya
information bank
高速道路にアクセス良!農地付き古民家物件
※下のサムネイル画像をクリックすると大きく表示されます
物件概要
| 種類 | 住宅 |
|---|---|
| 構造 | 木造 |
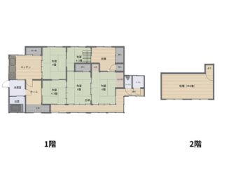
| 間取り |
1階:和室(6畳:3部屋・4.5畳:2部屋)板間、台所、トイレ、風呂 2階:板間1部屋 離れ:和室2部屋、物置併設 |
| 敷地面積 | 約800㎡(242坪) |
| 建築面積 | - |
| 延床面積 | 約110㎡ |
| 築年数 | 昭和9年 |
| 空き家年数 | 平成20年 |
| 修繕の要否 | 補修必要(床板一部、給湯器等) |
| 修繕の負担 | 利用者 |
設備等
| 電気 | 引込有 | 風呂 | 灯油(ボイラー) |
|---|---|---|---|
| ガス | プロパン | トイレ | 和式 汲取り 非水洗 |
| 水道 | 公営上水道 | キッチン | ガス調理器 |
| 駐車場 | 場所有 3台程度 | ペット | - |
| 付帯物件 | 離れ(兼倉庫)、倉庫 | 空き地等 | 畑:約1,700㎡ 田:約4,900㎡ 山林:約15,100㎡ 原野・雑種地:約1,400㎡ |
周辺環境
| 交通 |
JR伯備線・備中高梁駅 車で約23分(17,900m) 岡山自動車道・有漢IC 車で約4分(2,800m) |
|---|---|
| 周辺施設 |
こども園 車で約3分(1,900m) 小学校 車で約3分(1,600m) 中学校 車で約3分(1,600m) スーパー 車で約16分(11,000m) 病院 車で約23分(17,900m) コンビニ 車で約15分(12,100m) |
| 特記事項 |
※現状引き渡し(家財処分は家主で実施) ※不動産業者仲介物件(別途、仲介手数料必要) ※売買金額については応相談 ※家屋周辺の清掃及び町内活動のできる方 |
| マップ |
※HP上では物件所在地をピンポイントでご案内しておりません |






